Radio Stands

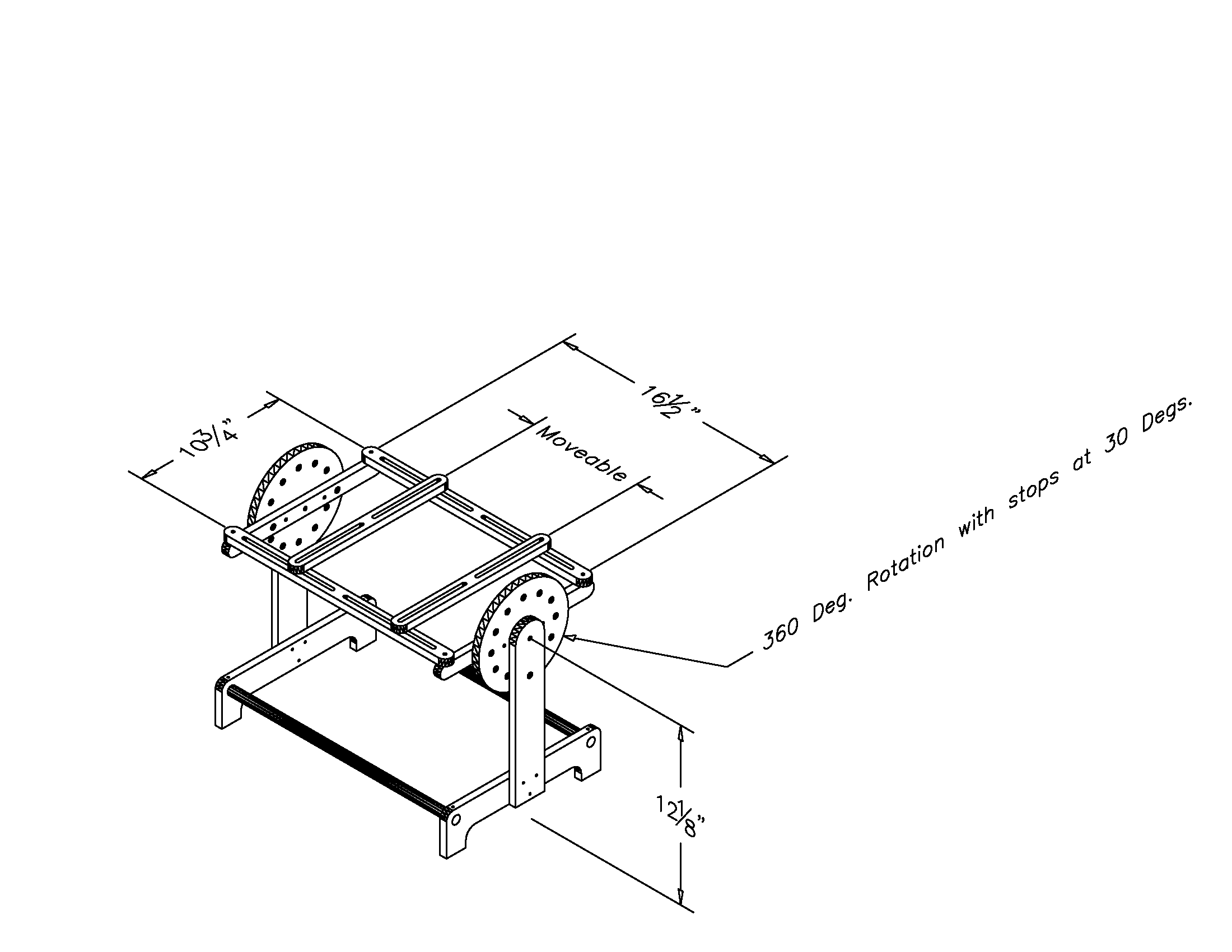
The Dimensions of a Small Stand.

The Dimensions of a Large Stand.

Home